Our Services
Design and Building Permits
The Woodbrick Construction will get the permit for your construction work to legalize it. We work directly with the registration process and handle all the steps of design & construction according to the safety codes. All designs are stamped by certified designers. We not only help our customers with the submission of permit applications but in the entire process until they get the permit.
Home Additions and Extensions
One of the best ways to manage a growing family or deal with space issues is through a new Home Addition. Additions also increase property value in the event of a resale. The best home additions are ones that add value and space necessary to meet the current and future demand of the homeowners like addition of a bathroom, kitchen, multipurpose room or garage.
Basement Finish, Remodeling and Renovations
Woodbrick Construction finishes an unfinished basement by adding the elements that make it livable as per your dream and desires. So, finishing a basement means we design and carryout framing, plumbing, electric wiring, dry walling, insulation, legal egress, ventilation, and flooring.
Remodeling and Addition of Kitchens and Bathrooms
Whether it is addition of a new kitchen/ bathroom or remodeling of an existing one, please don’t hesitate to contact us. We can handle you project from design to finish as per your desire and satisfaction.
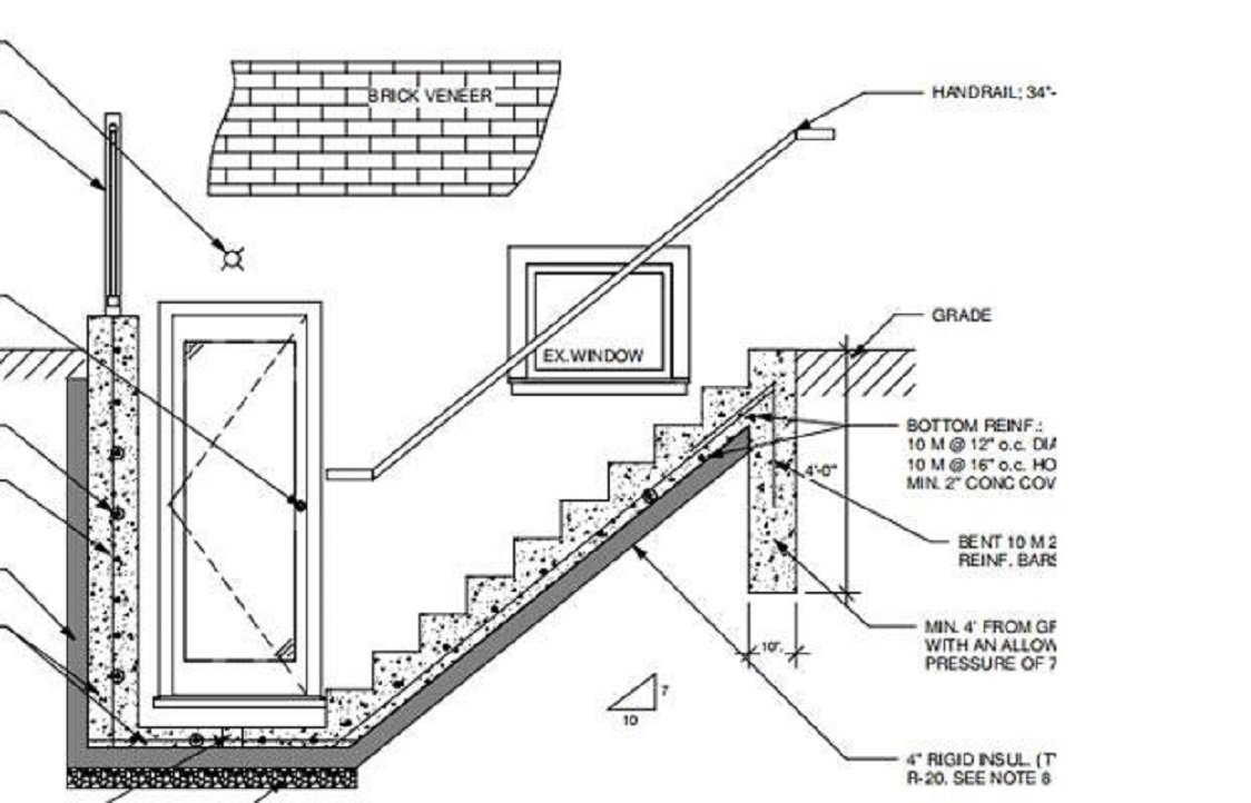
Below Grade Side Entrance
Maybe your basement gets neglected or under used due to its entrance and you need to convert it to a dwelling or recreation room and children play area. Giving a separate access to your basement leads to the addition of an extra suite to your home, and can convert your basement into a rentable unit as well. To add new entrances, we will cut or extend the openings in your foundation or concrete walls. We can get it done at best possible rates and 100% customer satisfaction. Free estimates for all different entrance-related services.
Egress Window
Egress window is the instant escape in the case of an emergency. Woodbrick Construction can get create a new egress window or adjust the size of the existing egress window. We can provide you the estimate for your project on the same day. Let us put our skills & experience into completing your project efficiently.
Address
- Miltin, Ontario, Canada
- +437-8814678
- Support@woodbrickconstructions.com
Woodbrick Construction Inc.
All our work is driven by a passion to work closely with the customer and deliver what they want on time and on budget.We aim to work with our clients schedules.
